发布时间:2023-07-31 点击:


▲原始户型图

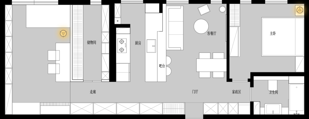
▲平面布局图


▲入户玄关,进门左手边定制了顶天立地的玄关柜,中间留空放随手小物,使用起来更加方便。看向大门,玄关两侧都打造了一整排收纳柜,收纳力max~





▲客餐厅一体化设计,整体看上去更加宽敞通透,空间流动性更佳。草绿色的布艺沙发,搭配木质悬空电视柜,加上无主灯设计,营造出清新素雅的居家环境。简约的餐桌设计,让生活回归本质。



▲厨房,拆除原有隔墙,做开放式设计,让空间不显得拥挤,采光和通透性也更好。定制了二字型的橱柜布局,并将冰箱嵌入进柜体,白色+原木色的搭配,既美观又实用。




▲主卧,选用核桃木高架床,以简明的几何线条,散发出复古怀旧的雅韵。




▲书房,大量采用中古家具,搭配黑白灰的软装,隐约而又内涵,给人一种隐居山林的感觉。




▲卫生间,隐藏灯带设计,渲染气氛,使间颇有层次感。
热门话题
查看更多焕然一新 · 专注旧房改造
4天
0甲醛焕新家
500+
在建工地实时播报
10000+
客户的共同选择
Copyright © 四川家焕然一新科技有限公司 版权所有 备案号:蜀ICP备2023040200号-1网站地图